
特性:
Z9型脹緊套常用于帶式輸送機驅動滾筒體的聯結。
標記示例:
內徑d=130mm、外徑D=180mm的Z2型脹緊聯接套:脹套Z2-130×180
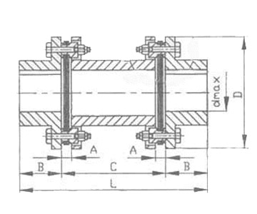
安裝參考范例
| 基 本 尺 寸 | 內六角螺釘 | 額定負荷 | 脹套與軸 結合面上 的壓力 Pf N/mm2 | 脹套與輪 轂結合面上的壓力 Pf′ N/mm2 | 螺釘的 擰 緊 力 矩 MA N·m | 重量 kg | |||||||
| d | D | L | L1 | e | B | d1 | n | 軸向 力F1 KN | 轉矩 M1 KN·m | ||||
| mm | |||||||||||||
| 100 | 145 | 54 | 75 | 5 | 65 | M12×60 | 8 | 192 | 9.6 | 102 | 70 | 145 | 4.7 |
| 110 | 155 | 54 | 75 | 5 | 65 | M12×60 | 8 | 191 | 10.5 | 93 | 66 | 145 | 5.1 |
| 120 | 165 | 54 | 75 | 5 | 65 | M12×60 | 9 | 216 | 13 | 96 | 70 | 145 | 5.5 |
| 130 | 180 | 63 | 84 | 6 | 72 | M12×70 | 12 | 287 | 17.8 | 100 | 78 | 145 | 7.5 |
| 140 | 190 | 63 | 84 | 6 | 72 | M12×70 | 12 | 287 | 20.2 | 94 | 69 | 145 | 7.9 |
| 150 | 200 | 63 | 84 | 6 | 72 | M12×70 | 12 | 287 | 21.6 | 88 | 66 | 145 | 8.4 |
| 160 | 210 | 63 | 84 | 6 | 72 | M12×70 | 15 | 360 | 28.8 | 101 | 77 | 145 | 8.9 |
| 170 | 225 | 63 | 84 | 6 | 72 | M12×70 | 16 | 383 | 32.6 | 101 | 76 | 145 | 10.5 |
| 180 | 235 | 63 | 84 | 6 | 72 | M12×70 | 18 | 431 | 38.8 | 108 | 82 | 145 | 11.0 |
| 190 | 250 | 69 | 94 | 6 | 81 | M14×75 | 15 | 493 | 46.8 | 106 | 80 | 230 | 14.3 |
| 200 | 260 | 69 | 94 | 6 | 81 | M14×75 | 16 | 526 | 52.8 | 100 | 77 | 230 | 15.0 |
| 220 | 285 | 69 | 94 | 6 | 81 | M16×75 | 14 | 640 | 70 | 119 | 92 | 355 | 17.8 |
| 240 | 305 | 86 | 112 | 7 | 98 | M16×90 | 16 | 731 | 88 | 96 | 75 | 355 | 23.2 |
| 260 | 325 | 86 | 112 | 7 | 98 | M16×90 | 18 | 822 | 107 | 103 | 82 | 355 | 24.8 |
| 280 | 355 | 94 | 120 | 8 | 106 | M16×100 | 20 | 910 | 128 | 96 | 75 | 355 | 33 |
| 300 | 375 | 94 | 120 | 8 | 106 | M16×100 | 22 | 1000 | 151 | 99 | 79 | 355 | 36 |
| 320 | 405 | 109 | 142 | 8 | 125 | M20×120 | 18 | 1280 | 206 | 101 | 80 | 690 | 52 |
| 340 | 425 | 109 | 142 | 8 | 125 | M20×120 | 20 | 1420 | 242 | 106 | 85 | 690 | 54 |
| 360 | 455 | 120 | 159 | 8 | 140 | M22×130 | 20 | 1770 | 319 | 113 | 89 | 930 | 72 |
| 380 | 475 | 120 | 159 | 8 | 140 | M22×130 | 20 | 1770 | 337 | 109 | 87 | 930 | 75 |
| 400 | 485 | 120 | 159 | 8 | 140 | M22×130 | 20 | 1770 | 355 | 101 | 83 | 930 | 79 |
| 420 | 515 | 120 | 159 | 8 | 140 | M22×130 | 22 | 1980 | 410 | 107 | 87 | 930 | 82 |
| 注:Z9型脹緊聯結套螺釘的機械性能等級為 12.9級。 | |||||||||||||
z9型脹緊聯結套
掃描二維碼分享到微信